L'accompagnement de l'Architecte
Un projet de transformation ou d’agrandissement ? L’architecte est là pour faire avancer votre projet. Vous imaginez un nouvel agencement, une extension ou une modification des façades de votre maison ? L’architecte vous aide à donner forme à vos idées tout en tenant compte de l’existant et du contexte réglementaire.
La mission partielle est un accompagnement depuis l’étude de faisabilité initiale jusqu’à la constitution du dossier administratif. Une façon simple et structurée de vous guider jusqu'au PC.
La mission complète est un accompagnement sur l'ensemble des étapes, depuis les esquisses, en passant par les études, les chiffrages, la consultation des entreprises et le suivi des travaux jusqu'aux finitions. Un projet clé en main, pour plus de sérénité.
Croquis d'aménagement
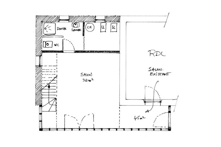
Plan d'aménagement
A : de l'Esquisse au Permis de Construire
Etape 1 : le Relevé de l'existant : la mesure du réel
Avant d’imaginer un projet en rénovation, l’architecte commence par mesurer et dessiner avec précision ce qui est déjà là. L’architecte réalise des plans précis à partir de relevés sur site, accompagnés si besoin d’un relevé topographique. Ce relevé permet de comprendre le bâtiment, ses particularités, et les contraintes liées au site et aux règles d’urbanisme, notamment dans des zones sensibles comme le centre historique de Saumur. Ces plans permettent de calculer les surfaces règlementaires : habitable (loi Carrez), emprise au sol, …. Des données essentielles pour préparer un dossier de permis de construire clair et conforme. Ce travail technique pose les bases solides du projet, facilite les échanges avec la mairie et l’ABF.
Etape 2 : le Diagnostic : comprendre le bâtiment pour mieux le rénover
À partir du relevé, l’architecte observe le bâtiment dans le détail : structures, matériaux, toiture, menuiseries, isolation, réseaux… Chaque élément est analysé avec méthode pour révéler le potentiel du lieu, ses points sensibles et ses qualités.
Cette étape, souvent négligée, demande une expertise technique et un regard global. Elle permet d’identifier ce qui fonctionne, ce qui mérite d’être renforcé, et les points à améliorer pour garantir la qualité du futur projet. Le diagnostic se termine par des recommandations précises, claires, et argumentées, qui permettent d’aborder les travaux avec confiance et anticipation.
Etape 3 : l'Esquisse (Avant-Projet ) : donner forme aux idées
L'architecte commence par écouter les envies et les besoins exprimés par le maitre d'ouvrage. Puis il questionne, affine le programme, croise les envies, les besoins de surface, le budget, les contraintes du site et les règles d’urbanisme. Ce dialogue donne naissance à une première vision du projet.
À travers des croquis, des plans et une organisation des espaces, l’esquisse montre comment habiter le lieu : répartition des pièces, circulations, ouvertures, lumière, volumes… Elle met en valeur les qualités du terrain et révèle le potentiel du bâti existant. Cette étude vous permet de mieux vous projeter et de valider vos premiers choix.
OPTION / Estimation budgétaire des travaux
Pour vous aider à planifier votre budget, l’architecte propose une estimation chiffrée des travaux à venir. À partir des plans et des choix faits en esquisse, il établit un document clair, appelé Descriptif Quantitatif Estimatif (DQE). Cette étape, rarement proposée à ce niveau de détail, donne une vision concrète du coût global, bien avant le démarrage du chantier. Elle permet de prendre des décisions solides et d’aborder la suite avec sérénité. C’est aussi un véritable appui pour les demandes de financement.
Etape 4 : Formalités administratives : l’Architecte vous guide
Selon la nature de votre projet, celui-ci nécessite soit un Permis de Construire (PC), soit une Déclaration Préalable de Travaux (DP). La différence ? Elle tient principalement à la surface créée, à la modification des façades et au délai accordé par l'administration.
Dans les deux cas, l’architecte se charge de constituer le dossier complet, à le déposer à la mairie. Il assure la conformité, le bon niveau de détail et les réponses aux attentes des services instructeurs. Vous gagnez du temps… et toutes les chances d’obtenir un accord.
B : du Permis de Construire à la Réception des Travaux
Etape 5 : le Projet Détaillé et le Cahier des Charges
Après l'obtention du PC, l'Architecte prépare la rédaction d'un DQE (Descriptif Quantitatif Estimatif) pour chaque lot (maçonnerie, charpente, etc). Il est important que tous les ouvrages soient clairement définis et compréhensibles pour les entreprises. En effet, une cohérence entre les pièces graphiques et les pièces écrites est nécessaire pour que les entreprises établissent des devis clairs et conformes aux attentes, en respectant les métrés et les unités. L'architecte prépare un dossier de plans qui décrit la forme des ouvrages, un DQE listant le nombre des ouvrages et un planning de travaux.
Etape 6 : la Consultation des Entreprises et l'Analyse des Devis
L'architecte consulte à minima deux entreprises par lot afin de garder une mise en concurrence loyale entre les entreprises. Votre Architecte est indépendant vis à vis des entreprises. Il n'y a aucune relation d'argent entre l'architecte et les entreprises. Cela lui permet de rester le médiateur objectif entre le Maitre de l'Ouvrage (qui est celui qui commande et paye) et les entrepreneurs (ceux qui réalisent les ouvrages).
L'architecte consulte des entreprises locales dont il connait le sérieux, le savoir faire et les capacités techniques à la réalisation du projet envisagé. Chaque entreprise est conviée sur le site pour se rendre compte des conditions d'accès du chantier, et toutes contraintes utiles à la préparation des devis.
Une fois recueilli tous les devis, l'architecte procède à l'analyse des offres sur les critères du DQE. L'architecte prépare alors une synthèse et propose à son client de choisir les entreprises qui ont le mieux répondu à la demande.
Etape 7 : la Direction et le Suivi des Travaux
Enfin, voici le moment tant attendu pour lancer les travaux. L'architecte établit les contrats de travaux qui scelleront l'engagement entre le commanditaire et l'entreprise sur la nature des travaux et les délais de réalisation. Chaque semaine, votre architecte organise une réunion de chantier pour constater l'avancement des travaux, discuter des détails de mise en oeuvre, revoir le planning et la coordination entre les entreprises.
A chaque étape de travaux, des questions esthétiques et techniques se posent auxquelles il faut trouver des solutions. En rénovation, l'adaptabilité est de rigueur. En effet, lors de la mise en œuvre se font jour tout un tas de petits arrangements avec le réel, avec l'histoire des lieux, avec la nature des matériaux que l'on souhaite conserver et valoriser. L'architecte, avec son expérience, vous aide à faire les bons choix et à garder le cap sur le projet.
Une première étape est le "clos et couvert" qui garantit que l'ouvrage est protégé des intempéries. Une deuxième étape est l'aménagement intérieur combinant en parallèle les travaux de platrerie et isolation avec les lots techniques de plomberie, chauffage et d'électricité. Et finalement la dernière étape est celle des finitions : carrelage, faience, peinture, menuiserie intérieure, mobilier.
Etape 8 : la Réception des Ouvrages
Quand arrive les finitions, l'architecte prévient les entreprises que la réception va bientôt s'effectuer. C'est le moment pour les entreprises de faire les reprises, les ajustements et la mise en route des équipements. L'objectif final du chantier est de livrer au maitre d'ouvrage un équipement fini et en état d'usage conformément au cahier des charges établi lors du marché de travaux.
La réception libère l'entreprise de sa responsabilité de la construction et déclenche à partir de cette date toutes les garanties habituelles : garantie de parfait achèvement, garantie biennale sur les équipements et garantie décennale sur les structures et les enveloppes. C'est alors et pas avant que le client peut solder le paiement des factures présentées par les entreprises.
Olivier CHARRIER
Architecte DPLG à Saumur
Architecte inscrit à l’Ordre des
Architectes des Pays de la Loire
n°074164
Entreprise individuelle
Siret : 413 201 849 00085
AOC Architecture
31, rue du Vieux Bagneux
49400 Saumur
06 40 06 41 84
contact@aoc-architecte.fr
Copyright : Atelier d'Architecture Olivier Charrier - 2025 - Site réalisé avec WebAcappellaFusion - F.A.Q. - Mentions Légales
Nous avons privilégiez une sobriété du contenu Textes et images sur les formats Smartphone Sm et Xs, nous vous invitons donc à revoir notre site sur les écrans d'ordinateurs Lg, Md pour découvrir plus de détails sur l'Atelier AOC.
Saumur - Montsoreau - Fontevraud l'Abbaye - Montreuil-Bellay - Doué en Anjou - Gennes Val de Loire - Beaufort en Anjou - Baugé en Anjou - Longué-jumelles - Vernantes - Noyant Villages - Brain sur Allonnes - Bourgueil







.jpg?t=f97e9c50_7a0c3069)
.jpg?t=f97e9c50_7a0c3069)
.jpg?t=f97e9c50_7a0c3069)