Construction neuve à Saumur
Réalisez votre rêve, accompagné par un architecte
Vous avez un terrain, une vision, et une envie profonde de voir se dessiner un lieu de vie qui vous ressemble. Ce n’est pas qu’un simple projet immobilier : c’est la création d’un espace qui fusionne avec la nature, vos besoins et vos aspirations.
Qu’il s’agisse d’une maison moderne en bois, d'une villa contemporaine, ou d’un style plus traditionnel, chaque ligne, chaque volume est pensé pour répondre à vos besoins tout en respectant l’environnement naturel du saumurois. Olivier, architecte DPLG, met l’accent sur la poésie de l’espace, une vision où l’esthétique et la fonctionnalité se rejoignent.
Vous souhaitez construire votre maison ou un local professionnel sur un terrain spécifique. Votre architecte vous conseillera pour définir le programme du projet et dessiner vos plans en harmonie avec l'environnement.
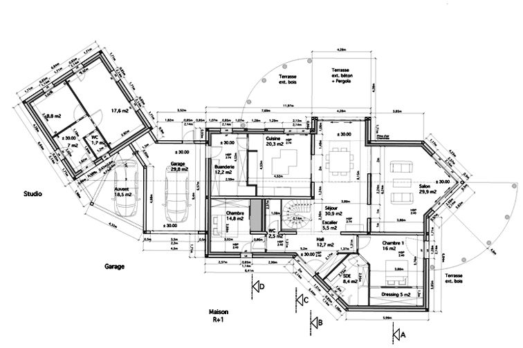
Les Plans : orientation, lignes cardinales et géométrie sensible
La construction d’une maison commence bien avant le chantier. Elle prend racine dans un terrain, une lumière, une orientation. Olivier, architecte DPLG à Saumur, pense chaque projet comme une mise en résonance entre le lieu et ceux qui vont y vivre.
Les volumes s’organisent à partir de vos usages, de votre quotidien. L’agencement des pièces ne suit pas un plan type, mais une logique sensible : circulation fluide, zones de repos baignées de lumière, espaces de partage tournés vers le paysage. Chaque pièce a sa raison d’être, son rôle, son ambiance.
L’implantation de la maison, l’orientation des façades, la façon dont elle capte les vues ou s’abrite du vent ne relèvent pas du hasard : ce sont les premières lignes d’un plan qui raconte votre manière d’habiter. Chaque choix est une réponse juste, à la fois technique et poétique.
Ici, la construction neuve devient un dialogue entre l’architecture, la nature, et votre manière de vivre. Une maison qui s’écrit avec vous, pour vous.
Une contruction vivante et durable
Bois, pierre, brique, matériaux naturels … et qui respirent. La maison contemporaine d’Olivier se distingue par l’usage de matériaux nobles et durables. L’ossature et le bardage bois permet une isolation naturelle et une respiration du bâti, tout en apportant une chaleur et une texture unique.
En plus de l’aspect esthétique, Olivier veille à ce que chaque maison devienne un espace énergétique intelligent : une architecture bioclimatique qui optimise les apports solaires, l’isolation performante et la circulation de l'air. Des solutions comme les panneaux photovoltaïques et les systèmes de chauffage passif sont intégrés pour offrir un bilan énergétique positif.
La maison devient un espace énergétique, non seulement en étant performante thermiquement, mais aussi en optimisant la lumière. Les solutions bioclimatiques font de chaque projet un lieu éco-responsable et durable.
Habiter votre maison, la vivre
Construire, c’est avant tout créer un lieu de vie. Une maison qui s’adapte à votre quotidien, qu’il s’agisse d’une jeune famille avec des enfants ou d’un couple en retraite, recherchant un espace de confort et de sérénité. Olivier imagine des maisons sur mesure, où chaque espace est pensé pour répondre aux besoins spécifiques des futurs habitants : des zones de jeux pour les enfants, un coin calme pour la lecture ou un plain-pied fluide et accessible pour profiter pleinement de chaque moment, sans contraintes.
Avec une approche attentive à l’architecture fonctionnelle, Olivier fait de chaque projet une réflexion minutieuse. L’orientation des pièces, l’agencement des espaces, et l’intégration au terrain sont soigneusement étudiés pour que chaque famille puisse vivre dans un environnement naturel, lumineux et pratique. La maison devient ainsi un refuge familial, un lieu qui évolue avec les saisons, où chaque moment du quotidien devient une expérience simple et agréable.
Ce n’est pas qu’une question d’architecture, c’est l’architecture d’une vie, où l’intérieur se mêle harmonieusement avec le monde extérieur, créant une atmosphère unique, à la fois fonctionnelle et inspirante, pour les années à venir.
Résidence Seniors : un lieu adapté pour tous
Un projet de petite taille, axé sur l’autonomie et le partage. Chaque logement a une grande pièce de vie lumineuse et des espaces communs favorisant la convivialité. L’architecture respectueuse du cadre naturel assure à la fois confort et sérénité.
Accueil et boutique de "Miel & Safran"
Projet d'un accueil boutique pour une création d'activité de production de Miel et de Safran. Le projet s'inscrit dans un site exceptionnel et surplombe une petite vallée. Le bâtiment vient se racorder par un hall vitré à un ancien chenil en pierre et brique. Une construction en béton pour le niveau bas et en ossature bois pour le niveau haut. Toiture terre cuite canal pour parfaire l'intégration dans le site.
Olivier CHARRIER
Architecte DPLG à Saumur
Architecte inscrit à l’Ordre des
Architectes des Pays de la Loire
n°074164
Entreprise individuelle
Siret : 413 201 849 00085
AOC Architecture
31, rue du Vieux Bagneux
49400 Saumur
06 40 06 41 84
contact@aoc-architecte.fr
Copyright : Atelier d'Architecture Olivier Charrier - 2025 - Site réalisé avec WebAcappellaFusion - F.A.Q. - Mentions Légales
Nous avons privilégiez une sobriété du contenu Textes et images sur les formats Smartphone Sm et Xs, nous vous invitons donc à revoir notre site sur les écrans d'ordinateurs Lg, Md pour découvrir plus de détails sur l'Atelier AOC.
Saumur - Montsoreau - Fontevraud l'Abbaye - Montreuil-Bellay - Doué en Anjou - Gennes Val de Loire - Beaufort en Anjou - Baugé en Anjou - Longué-jumelles - Vernantes - Noyant Villages - Brain sur Allonnes - Bourgueil





